+7 (962) 284-07-26
+7 (4162) 230-160
Главная
Наши работы
Архитектура
Интерьеры
Ландшафт
Новости
Прайс
О нас
О нас
Наша жизнь
Наши награды
Интересно почитать
Контактная информация
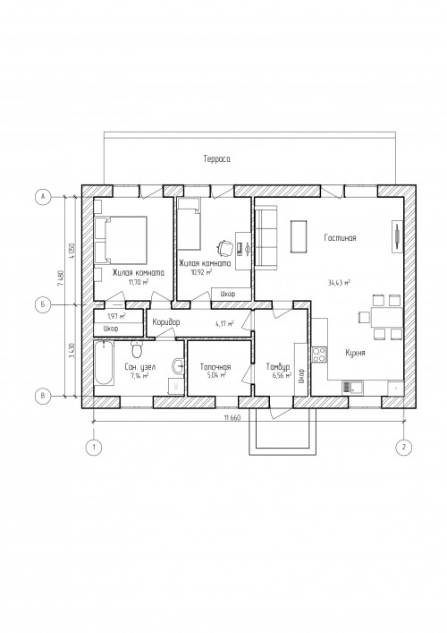
85 кв м
Ваш браузер устарел рекомендуем обновить его до последней версии
или использовать другой более современный.